Aller au contenu principal
Réf. : 50040-571
Dernière mise à jour de l’annonce : 17/12/2025

Vente

120 940 € (Honoraires de négociation inclus)
115 000 € (Prix net vendeur)
Montant des honoraires : 5 940 €
Pourcentage des honoraires : 5 %
Honoraires à la charge de l'acquéreur
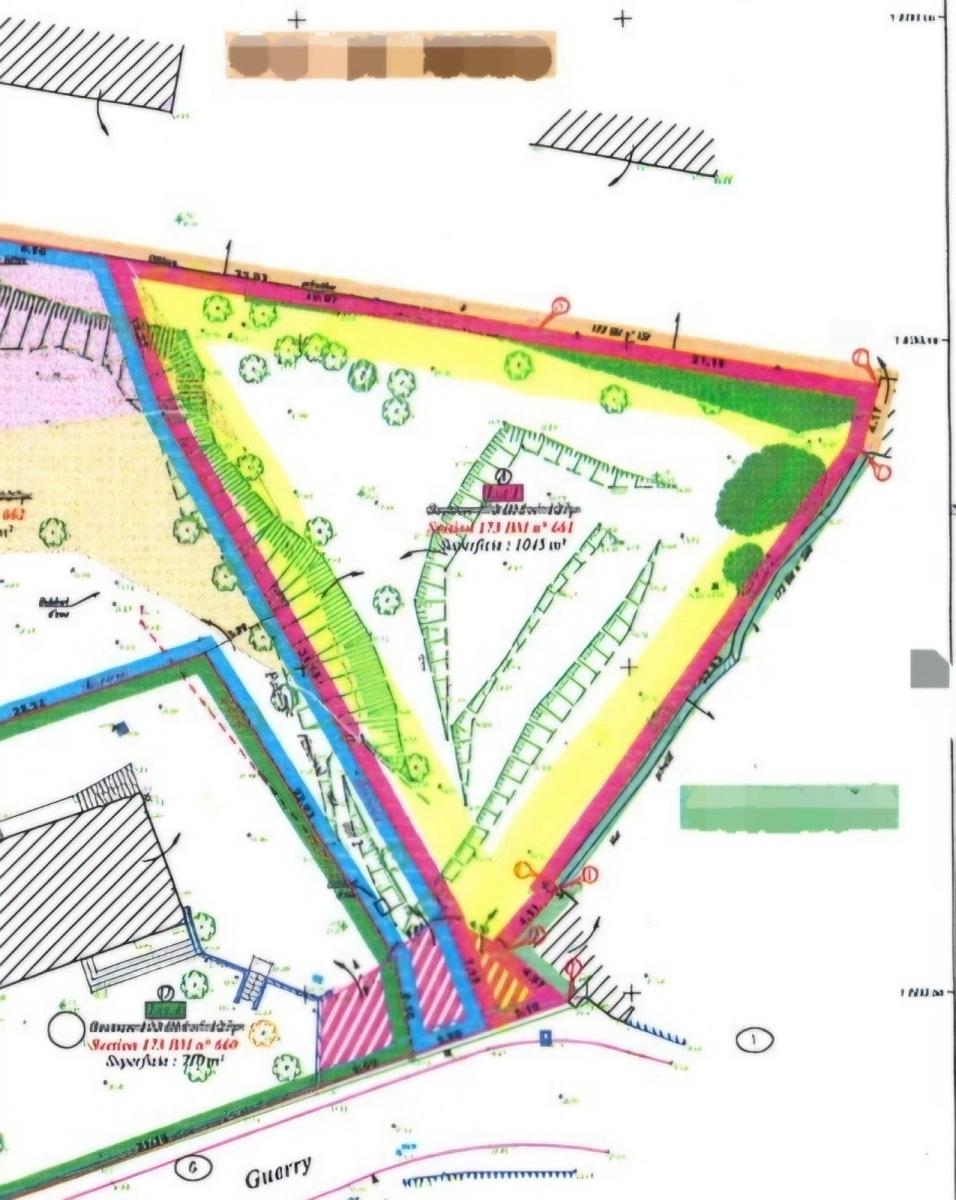
50120 Cherbourg-en-Cotentin
L’ETUDE NAPOLÉON CHERBOURG vous propose à la vente ce terrain constructible de 1045 m² non viabilisé. Certificat d'urbanisme opérationnel positif. Les informations sur les risques auxquels ce bien est exposé sont disponibles sur le site Géorisques : www.georisques.gouv.fr. www.etudenapoleon.notaires.fr

Conditions de vente

Prix HNI :  120 940 €
(honoraires de négociation inclus)
Prix net vendeur :  115 000 €
Honoraires :  5 940 € (Montant des honoraires de négociation)
Pourcentage d'honoraires :  5 %
Type d'honoraires :  À la charge de l'acquéreur

Contact

Office :  ETUDE NAPOLEON
Négociateur : Nathalie PENVEN
Téléphone : 02 33 01 51 55
Adresse : 107 Rue Emmanuel Liais
Code postal :  50100
Ville :  CHERBOURG OCTEVILLE