Aller au contenu principal
Retour à la recherche

Maison 3 pièces, 97 m2

Réf. : VM2978-14097
Dernière mise à jour de l’annonce : 15/11/2025

Vente

280 000 € (honoraires de négociation inclus)
Honoraires à la charge du vendeur
14130 Pont-l'Évêque
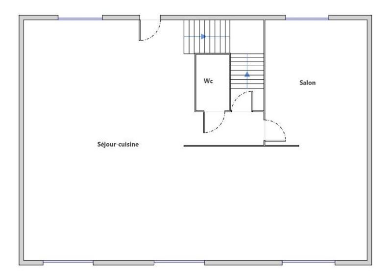
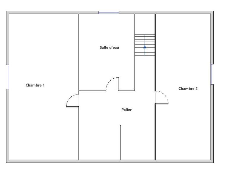
PONT L'EVEQUE - Maison dans une impasse, composée : Au rez-de-chaussée : une entrée sur la cuisine ouverte, salon séjour de 43.60 m², WC séparé et accés au sous-sol complet. A l'étage : un couloir avec rangement dessert deux chambres et une salle de douche avec rangement. Travaux de finition et huisseries à prévoir. Sur terrain clos et arboré de 968 m². Nous aimons sa situation et ses possibilités. Les informations sur les risques auxquels ce bien est exposé sont disponibles sur le site Géorisques : georisques.gouv.fr

Général

Nombre de pièces : 3
Nombre de chambres : 2
Surface :  97 m2
Surface Carrez :  97 m2
Superficie : 968 m2
Etat : A rénover
Nombre de niveaux : 1

Bilan énergétique

Date du diagnostic :  27-10-2025
DPE
Logement économe
225 kwh/m²/an
Logement énergivore
GES
Faible émission de GES
48 kg CO₂/m²/an
Forte émission de GES

Depuis le 1er juillet 2021, c’est la plus mauvaise des deux performances (DPE ou GES) qui est retenue au final.

Équipements

Accès handicapé : Oui
Terrasse : Oui
Stationnement : Oui

Conditions de vente

Prix HNI :  280 000 €
(honoraires de négociation inclus)
Type d'honoraires :  À la charge du vendeur

Contact

Adresse : 42 Rue Hamelin
Code postal :  14130
Ville :  PONT L EVEQUE